
BZD防爆振動電機又稱為臥式防爆振動電機,是一種可以在易燃易爆廠所使用的一種電機,運行時不產生電火花。BZD動電機作為主要的振動篩、振動給料機、振動輸送機、振動料斗和其他振動機械以及振動設備上。

防爆電機主要用于煤礦、石油天然氣、石油化工和化學工業。此外,在紡織、冶金、城市煤氣、交通、糧油加工、造紙、醫藥等部門也被廣泛應用。



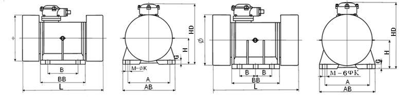
BZD防爆振動電機外形尺寸
| 型號 | 級數 | A | B | H | AB | G | BB | HD | L | M-Φk | Φ | 質量(kg) | ||
|---|---|---|---|---|---|---|---|---|---|---|---|---|---|---|
| BZD | 2.5 | 2 | 180 | 140 | 125 | 220 | 20 | 180 | 340 | 366 | 4-Φ18 | Φ206 | 39 | |
| 4 | 180 | 110 | 125 | 220 | 16 | 150 | 340 | 331 | 4-Φ14 | Φ206 | 33 | |||
| 6 | 180 | 140 | 125 | 220 | 20 | 180 | 340 | 380 | 4-Φ14 | Φ230 | 46 | |||
| 5 | 2 | 180 | 140 | 125 | 220 | 20 | 180 | 340 | 366 | 4-Φ18 | Φ206 | 42 | ||
| 4 | 180 | 110 | 125 | 220 | 16 | 150 | 340 | 345 | 4-Φ14 | Φ206 | 40 | |||
| 6 | 180 | 140 | 125 | 220 | 20 | 180 | 340 | 405 | 4-Φ14 | Φ230 | 56 | |||
| 8 | 2 | 180 | 140 | 125 | 220 | 20 | 180 | 340 | 390 | 4-Φ18 | Φ206 | 46 | ||
| 4 | 180 | 140 | 125 | 220 | 20 | 180 | 340 | 380 | 4-Φ18 | Φ230 | 55 | |||
| 6 | 220 | 160 | 140 | 270 | 22 | 230 | 366 | 475 | 4-Φ18 | Φ260 | 81 | |||
| 10 | 2 | 180 | 140 | 125 | 220 | 20 | 180 | 340 | 410 | 4-Φ18 | Φ206 | 52 | ||
| 4 | 180 | 140 | 125 | 220 | 20 | 180 | 340 | 420 | 4-Φ18 | Φ230 | 58 | |||
| 6 | 220 | 160 | 140 | 270 | 22 | 230 | 366 | 475 | 4-Φ18 | Φ260 | 90 | |||
| 16 | 2 | 220 | 160 | 140 | 270 | 22 | 230 | 370 | 470 | 4-Φ26 | Φ260 | 70 | ||
| 4 | 220 | 160 | 140 | 270 | 25 | 230 | 366 | 460 | 4-Φ26 | Φ260 | 80 | |||
| 6 | 260 | 180 | 160 | 320 | 25 | 260 | 398 | 510 | 4-Φ26 | Φ300 | 113 | |||
| 20 | 2 | 220 | 160 | 140 | 270 | 22 | 230 | 370 | 470 | 4-Φ26 | Φ260 | 74 | ||
| 4 | 220 | 160 | 140 | 270 | 25 | 230 | 366 | 460 | 4-Φ26 | Φ260 | 82 | |||
| 6 | 260 | 180 | 160 | 320 | 25 | 260 | 398 | 538 | 4-Φ26 | Φ300 | 123 | |||
| 30 | 4 | 260 | 180 | 160 | 320 | 25 | 260 | 396 | 480 | 4-Φ33 | Φ300 | 115 | ||
| 6 | 320 | 200 | 195 | 400 | 30 | 315 | 470 | 556 | 4-Φ33 | Φ375 | 192 | |||
| 40 | 4 | 260 | 180 | 160 | 320 | 25 | 260 | 396 | 525 | 4-Φ33 | Φ300 | 126 | ||
| 6 | 320 | 200 | 195 | 400 | 30 | 315 | 470 | 585 | 4-Φ33 | Φ375 | 203 | |||
| 50 | 4 | 320 | 200 | 195 | 400 | 30 | 315 | 470 | 560 | 4-Φ33 | Φ375 | 197 | ||
| 6 | 370 | 190 | 225 | 460 | 32 | 315 | 520 | 610 | 4-Φ39 | Φ400 | 282 | |||
| 75 | 4 | 320 | 200 | 195 | 400 | 30 | 315 | 470 | 560 | 4-Φ39 | Φ375 | 286 | ||
| 6 | 370 | 250 | 225 | 460 | 32 | 375 | 520 | 742 | 4-Φ39 | Φ400 | 376 | |||
| 100 | 4 | 370 | 190 | 225 | 460 | 32 | 315 | 520 | 595 | 4-Φ39 | Φ400 | 376 | ||
| 6 | 420 | 150 | 260 | 520 | 38 | 450 | 572 | 800 | 6-Φ45 | Φ462 | 426 | |||
| 130 | 4 | 370 | 250 | 225 | 460 | 32 | 375 | 520 | 695 | 4-Φ39 | Φ400 | 386 | ||
| 6 | 420 | 150 | 260 | 520 | 38 | 450 | 572 | 851 | 6-Φ45 | Φ462 | 516 | |||
BZD防爆振動電機技術參數
| 型號 | 級數 | 額定激振力(KN) | 額定功率(KW) | 額定電壓 (V) | 額定電流 (A) | 額定頻率(Hz) | 振率次/min | 接法 | 絕緣等級 | 工作定額 | 防護等級 | |
|---|---|---|---|---|---|---|---|---|---|---|---|---|
| BZ D | 2.5 | 2 | 2.5 | 0.25 | 380、660 | 2.5、1.44 | 50 | 2800 | Y | F | SI | IP55 |
| 4 | 0.13 | 380、660 | 0.42、0.24 | 50 | 1380 | Y | F | SI | IP55 | |||
| 6 | 0.2 | 380、660 | 0.72、0.42 | 50 | 900 | Y | F | SI | IP55 | |||
| 5 | 2 | 5 | 0.4 | 380、660 | 2.5、1.5 | 50 | 2800 | Y | F | SI | IP55 | |
| 4 | 0.25 | 380、660、415 | 0.90、0.51、0.85 | 50 | 1380 | Y | F | SI | IP55 | |||
| 6 | 0.4 | 380、660 | 1.30、0.75 | 50 | 900 | Y | F | SI | IP55 | |||
| 8 | 2 | 8 | 0.55 | 380、660、415 | 2.2、1.4、2.2 | 50 | 2800 | Y | F | SI | IP55 | |
| 4 | 0.45 | 380、660 | 1.50、0.87 | 50 | 1380 | Y | F | SI | IP55 | |||
| 6 | 0.55 | 380、660 | 1.70、0.98 | 50 | 920 | Y | F | SI | IP55 | |||
| 10 | 2 | 10 | 0.75 | 380、660 | 2.3、1.33 | 50 | 2820 | Y | F | SI | IP55 | |
| 4 | 0.55 | 380、660、415 | 1.8、1.8、1.7 | 50 | 1380 | Y | F | SI | IP55 | |||
| 6 | 0.75 | 380/660 | 2.10/1.21 | 50 | 920 | Y | F | SI | IP55 | |||
| 16 | 2 | 16 | 1.1 | 380/660 | 2.5、1.44 | 50 | 2850 | Y | F | SI | IP55 | |
| 4 | 0.75 | 380/660 | 2.30、1.33 | 50 | 1410 | Y | F | SI | IP55 | |||
| 6 | 1.1 | 380、660、400 | 3.37、1.95、3.54 | 50 | 940 | Y | F | SI | IP55 | |||
| 20 | 2 | 20 | 1.5 | 380/660 | 3.5、2.02 | 50 | 2850 | Y | F | SI | IP55 | |
| 4 | 1.1 | 380/660、660/1140、415 | 3.30/2.0、3.3/1.91、3.2 | 50 | 1410 | △/Y △ |
F | SI | IP55 | |||
| 6 | 1.5 | 380/660、660/1140、430 | 3.78/2.2、2.2/1.3、3.34 | 50 | 940 | △/Y △ |
F | SI | IP55 | |||
| 30 | 4 | 30 | 1.5 | 380/660 | 4.9/2.83 | 50 | 1410 | Y | F | SI | IP55 | |
| 6 | 2.2 | 380/660 | 5.36/3.07 | 50 | 950 | △/Y | F | SI | IP55 | |||
| 40 | 4 | 40 | 1.85 | 380/660 | 4.70/2.70 | 50 | 1410 | △/Y | F | SI | IP55 | |
| 6 | 3.0 | 380/660 | 8.00/4.60 | 50 | 950 | △/Y | F | SI | IP55 | |||
| 50 | 4 | 50 | 2.2 | 380/660 | 5.40/3.10/ | 50 | 1430 | △/Y | F | SI | IP55 | |
| 6 | 3.7 | 380/660 | 9.50/5.50 | 50 | 940 | △/Y | F | SI | IP55 | |||
| 75 | 4 | 75 | 3.7 | 380/660 | 8.70/5.00 | 50 | 1430 | △/Y | F | SI | IP55 | |
| 6 | 5.5 | 380/660 | 13.00/7.50 | 50 | 940 | △/Y | F | SI | IP55 | |||
| 100 | 4 | 100 | 5.5 | 380/660 | 12.50/7.20 | 50 | 1440 | △/Y | F | SI | IP55 | |
| 6 | 7.5 | 380/660 | 15.00/8.70 | 50 | 960 | △/Y | F | SI | IP55 | |||
| 130 | 4 | 130 | 7.5 | 380/660 | 16.80/9.70 | 50 | 1440 | △/Y | F | SI | IP55 | |
| 6 | 10.0 | 380/660 | 22.50/13.00 | 50 | 960 | △/Y | F | SI | IP55 | |||

1.保修期內非因操作不當造成需要更換的零配件及設備由我廠負責包修、包換。
2.質量保證期結束后,我廠將繼續免費提供售后服務,不限年份終身服務,僅收取零部件成本費,免收人工費,免收維修費。
為了向您提供完善的售后服務,請將您的寶貴意見、建議及要求反饋給我廠。我們感謝貴單位使用我廠的產品,我廠建立有完整的營銷網絡及完善的售后服務體系,售后服務部已將您購買的產品建立了信息檔案。如果您購買的產品出現質量問題,我們將及時為您提供全方位的服務。